Number of floors
4
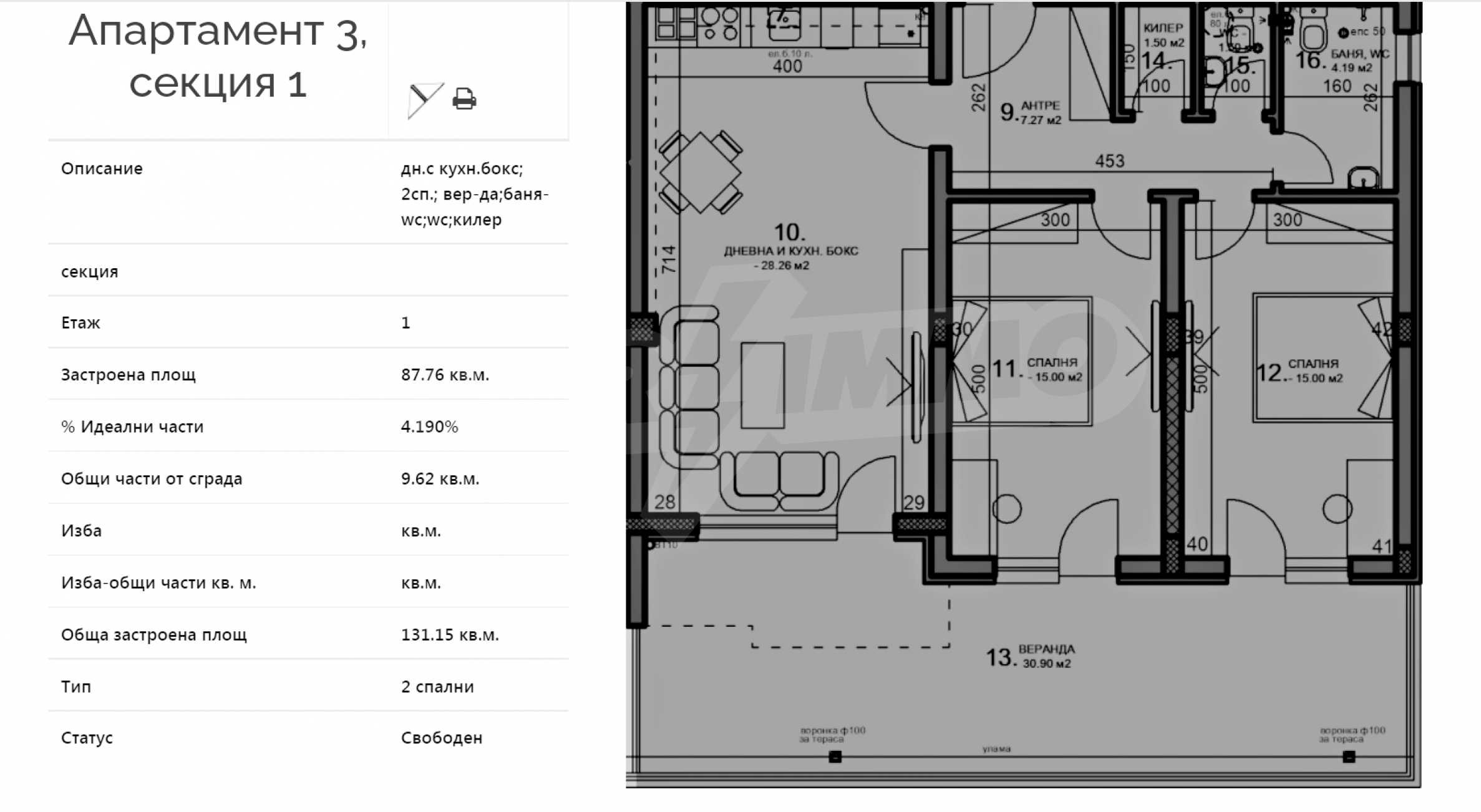
Floor
1
Basement
yes
Lift
yes
Number of bedrooms
2
Bathrooms
1
Terrace area
30.90 sq.m
Balconies (Terraces) No.:
1
WCs (Toilettes)
1
Storage/Cellar
yes

Total area
131.15 sq.m
Net area
121.53 sq.m
Common parts
9.62 sq.m
Terrace
30.90 sq.m

Request more information or a viewing
Info pack
Distance
Last update
18.05.2024
Distance from the property to major attractions
Views from the property
- Park views
- Views to inner garden
Construction
- Brick-built
- Reinforced concrete structure
Information about the property
GASIFICATION, ELECTRICITY
- Electricity
WATER SUPPLY
- Communal water supply
FACADE
- external wall insulation
ELEVATORS
- luxury elevators
FINISHING OF COMMUNAL AREAS
- granite tiles
- latex painted walls
SEWERAGE SYSTEM
- Mains drainage
ROOFING
- roof insulation
- roof tiles
- sloping roof
SANITARY AND AUXILIARY ROOMS/AREAS
- Balcony
- Balcony
- Basement
- Bathroom
- Bathroom with toilet
- Storage room
- Veranda
INSULATION AND FINISHING WORKS
- Armored front door
- Unfinished interior
- UPVC window frames
EXTRAS IN THE BUILDING
- Gated development
ACCESS TO THE PROPERTY AND TELECOMMUNICATIONS
- Internal audio and video system
- Internet
- On asphalt road
- Wi-Fi
OTHER
- In residential building
The text has been translated into English by automatic software and may contain inaccuracies.
You can view the text in the original language or translated into other languages:
We present a two-bedroom apartment in a residential project, which aims to provide its residents with the best combination of privacy, nature and urban amenities. The project is located not far from the Rowing Base, just a few minutes by car from the center of Plovdiv and 5 minutes from the Ring Road.
Consisting of two small detached buildings with a landscaped yard, the complex provides security and environment to the occupants, without them having to compromise with their dream of living close to nature.
The two-bedroom apartment is located on the 2nd floor and has a total area of 112.44 m2
Distribution: 2 bedrooms, open-plan kitchenette, dining area, living room, terrace, bathroom / wc, closet.
Act 16 is expected in December 2021
The apartment is issued with a degree of completion according to BDS:
? PVC windows;
? screed and plaster;
? Plumbing to the stopper;
? turnkey electrical installation;
? wiring;
? heating of air conditioners.
The architecture and planning of the complex emphasizes large courtyards, functional common areas, modern layouts of homes and all this - in harmony with the environment. The general plan of the area practically eliminates the possibility of redevelopment near the complex. This will give the owners peace of mind both for the funds and for the long-term value of their investment.
Viewings
We are ready to organize a viewing of this property at a time convenient for you. Please contact the responsible estate agent and inform them when you would like to have viewings arranged. We can also help you with flight tickets and hotel booking, as well as with travel insurance.
Property reservation
You can reserve this property with a non-refundable deposit of 2,000 Euro, payable by credit card or by bank transfer to our company bank account. After receiving the deposit the property will be marked as reserved, no further viewings will be carried out with other potential buyers, and we will start the preparation of the necessary documents for completion of the deal. Please contact the responsible estate agent for more information about the purchase procedure and the payment methods.
After sale services
We are a reputable company with many years of experience in the real estate business. Thus, we will be with you not only during the purchase process, but also after the deal is completed, providing you with a wide range of additional services tailored to your requirements and needs, so that you can fully enjoy your property in Bulgaria. The after sale services we offer include property insurance, construction and repair works, furniture, accounting and legal assistance, renewal of contracts for electricity, water, telephone and many more.
Consisting of two small detached buildings with a landscaped yard, the complex provides security and environment to the occupants, without them having to compromise with their dream of living close to nature.
The two-bedroom apartment is located on the 2nd floor and has a total area of 112.44 m2
Distribution: 2 bedrooms, open-plan kitchenette, dining area, living room, terrace, bathroom / wc, closet.
Act 16 is expected in December 2021
The apartment is issued with a degree of completion according to BDS:
? PVC windows;
? screed and plaster;
? Plumbing to the stopper;
? turnkey electrical installation;
? wiring;
? heating of air conditioners.
The architecture and planning of the complex emphasizes large courtyards, functional common areas, modern layouts of homes and all this - in harmony with the environment. The general plan of the area practically eliminates the possibility of redevelopment near the complex. This will give the owners peace of mind both for the funds and for the long-term value of their investment.
Viewings
We are ready to organize a viewing of this property at a time convenient for you. Please contact the responsible estate agent and inform them when you would like to have viewings arranged. We can also help you with flight tickets and hotel booking, as well as with travel insurance.
Property reservation
You can reserve this property with a non-refundable deposit of 2,000 Euro, payable by credit card or by bank transfer to our company bank account. After receiving the deposit the property will be marked as reserved, no further viewings will be carried out with other potential buyers, and we will start the preparation of the necessary documents for completion of the deal. Please contact the responsible estate agent for more information about the purchase procedure and the payment methods.
After sale services
We are a reputable company with many years of experience in the real estate business. Thus, we will be with you not only during the purchase process, but also after the deal is completed, providing you with a wide range of additional services tailored to your requirements and needs, so that you can fully enjoy your property in Bulgaria. The after sale services we offer include property insurance, construction and repair works, furniture, accounting and legal assistance, renewal of contracts for electricity, water, telephone and many more.
View the text in other languages (automatic translation)
Location (approximate)
This is the approximate location of the property. Please get in contact with us to learn its exact location.


ORIGINAL: